中古一戸建て 松山市来住町
所在地
松山市来住町
1,380万円
37.26坪
■新久米バス停より徒歩8分でアクセス良好、久米小学校・久米中学校まで徒歩11分圏内でお子様の通学も安心!
月々の
支払例
支払例
万円
年
%
円
※SBI新生銀行/借入金1,380万円、返済期間35年、金利0.600%(変動金利)の場合
※審査により金利は変わる可能性があります。
※ローン取扱手数料は別途費用負担・団信拡大は金利上乗せがございます。
物件概要
- 交通
-
バス停新久米 まで 徒歩8分
- 接道状況
- 西側 私道4m 間口約9.5m
- 土地面積
- 公簿 161.50㎡ (48.85坪)
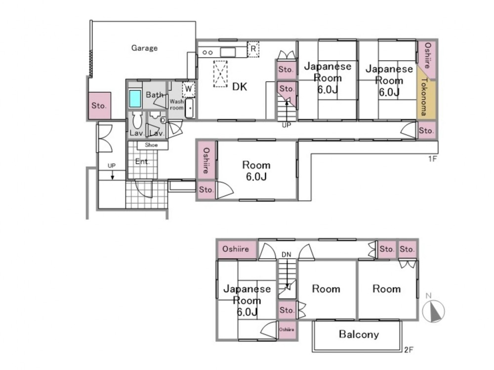
- 建物面積
- 123.19㎡ (37.26坪)
- 築年数
-
1985年
(昭和60)
10月
築40年 - 間取り
- 5LDK
- 建ぺい率
- 70%
- 容積率
- 200%
- 土地権利
- 所有権
- 構造および階数
- 木造 地上2階建
- 小学校区
- 久米 (850m)
- 中学校区
- 久米 (550m)
- 私道負担
- 地目
- 宅地
- 現況
- 空
- 引渡時期
- 相談
- 駐車場
- 上水道
- 下水道
- ガス
- 都市計画
- 市街化調整区域
- 用途地域
- 設備・条件
- プロパンガス,電気,上水道,浄化槽,システムキッチン,IHクッキングヒーター,シャンプードレッサー,庭,床下収納
- 備考
- 取引態様
- 仲介
その他周辺物件
*35年ローン / 金利0.600%の場合
※審査により金利は変わる可能性があります。
詳しくは詳細ページをご覧ください。
※ローン取扱手数料は別途費用負担・団信拡大は金利上乗せがございます。

