中古一戸建て 松山市鷹子町
所在地
松山市鷹子町
3,180万円
34.18坪
■オール電化、駐車場3台、スーパー・ドラッグストア・コンビニあり徒歩7分圏内で生活利便性良好、久米小学校まで徒歩4分でお子様の通学も安心!
月々の
支払例
支払例
万円
年
%
円
※SBI新生銀行/借入金3,180万円、返済期間35年、金利0.600%(変動金利)の場合
※審査により金利は変わる可能性があります。
※ローン取扱手数料は別途費用負担・団信拡大は金利上乗せがございます。
物件概要
- 交通
-
伊予横河原 まで 徒歩8分
- 接道状況
- 西側 公道4m 間口約10.5m
- 土地面積
- 公簿 198.36㎡ (60.00坪)
- 建物面積
- 113.00㎡ (34.18坪)
- 築年数
-
2007年
(平成19)
3月
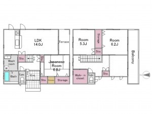
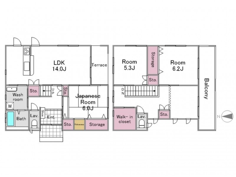
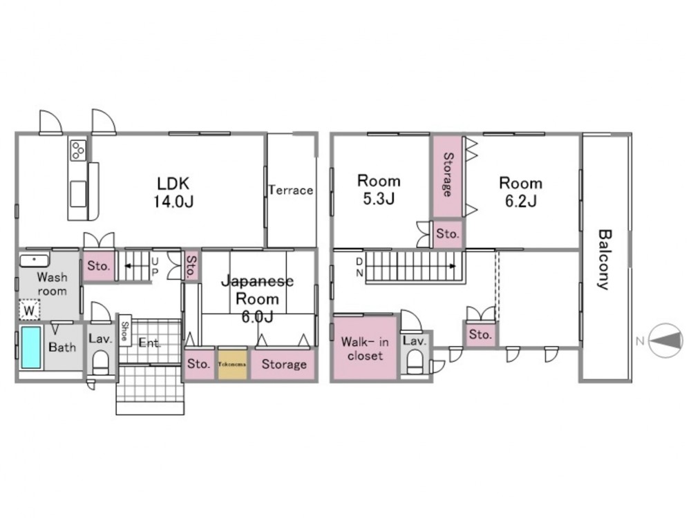
築19年 - 間取り
- 3SLDK
- 建ぺい率
- 60%
- 容積率
- 200%
- 土地権利
- 所有権
- 構造および階数
- 木造 地上2階建
- 小学校区
- 久米 (300m)
- 中学校区
- 久米 (1451m)
- 私道負担
- 地目
- 宅地
- 現況
- 居住中
- 引渡時期
- 相談
- 駐車場
- 有
- 上水道
- 下水道
- ガス
- 都市計画
- 市街化区域
- 用途地域
- 1種住居
- 設備・条件
- 電気,上水道,下水道,システムキッチン,カウンターキッチン,食器洗浄乾燥機,IHクッキングヒーター,トイレ2箇所,温水洗浄便座,シャンプードレッサー,浴室乾燥機,バス1坪以上,床暖房,照明器具付き,オール電化,ウォークインクローゼット,床下収納,駐車場3台分
- 備考
- 取引態様
- 仲介
その他周辺物件
*35年ローン / 金利0.600%の場合
※審査により金利は変わる可能性があります。
詳しくは詳細ページをご覧ください。
※ローン取扱手数料は別途費用負担・団信拡大は金利上乗せがございます。

