中古一戸建て 松山市畑寺4丁目
所在地
松山市畑寺4丁目
1,380万円
23.80坪
■駐車2台可能、南向きで日当たり良好、近隣にスーパー・ドラッグストア・コンビニあり生活利便性良好!
月々の
支払例
支払例
万円
年
%
円
※SBI新生銀行/借入金1,380万円、返済期間35年、金利0.600%(変動金利)の場合
※審査により金利は変わる可能性があります。
※ローン取扱手数料は別途費用負担・団信拡大は金利上乗せがございます。
物件概要
- 交通
-
伊予横河原 バス停三町 まで 徒歩9分
- 接道状況
- 東側 私道4m 間口約11.7m
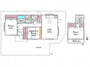
- 土地面積
- 公簿 137.86㎡ (41.70坪)
- 建物面積
- 78.69㎡ (23.80坪)
- 築年数
-
1999年
(平成11)
5月
築26年 - 間取り
- 3LDK
- 建ぺい率
- 60%
- 容積率
- 200%
- 土地権利
- 所有権
- 構造および階数
- 木造 地上2階建
- 小学校区
- 北久米 (1200m)
- 中学校区
- 桑原 (1700m)
- 私道負担
- 無
- 地目
- 宅地
- 現況
- 空
- 引渡時期
- 即時
- 駐車場
- 上水道
- 下水道
- ガス
- 都市計画
- 市街化区域
- 用途地域
- 1種中高
- 設備・条件
- 複層ガラス,駐車場2台分
- 備考
- 取引態様
- 仲介
その他周辺物件
*35年ローン / 金利0.600%の場合
※審査により金利は変わる可能性があります。
詳しくは詳細ページをご覧ください。
※ローン取扱手数料は別途費用負担・団信拡大は金利上乗せがございます。

