中古一戸建て 松山市西長戸町
所在地
松山市西長戸町
2,600万円
62.11坪
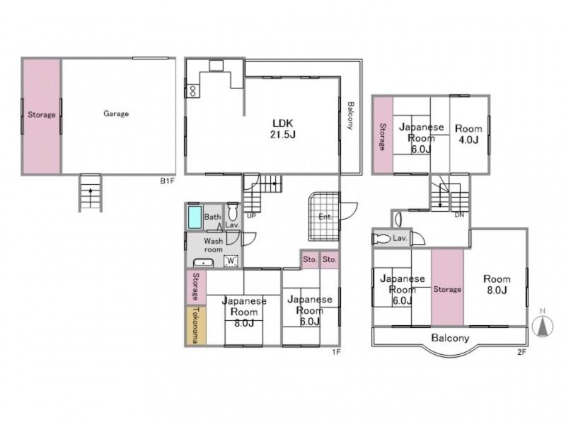
■ビルトインガレージで駐車場2台可能、広々とした約21以上のLDKの全居室収納ありの5LDKの物件、近隣にスーパー・ドラッグストア・コンビニあり利便性良好!
月々の
支払例
支払例
万円
年
%
円
※イオン銀行住宅ローン/借入金2,600万円、返済期間35年、金利0.780%(変動金利)の場合
※審査により金利は変わる可能性があります。
※ローン取扱手数料は別途費用負担・団信拡大は金利上乗せがございます。
物件概要
- 交通
-
バス停西長戸南口 まで 徒歩9分
- 接道状況
-
東側 私道4m 間口約17.9m
南側 公道4m 間口約12.3m - 土地面積
- 公簿 231.57㎡ (70.04坪)
- 建物面積
- 205.33㎡ (62.11坪)
- 築年数
-
1984年
(昭和59)
12月
築40年 - 間取り
- 5LDK
- 建ぺい率
- 50%
- 容積率
- 80%
- 土地権利
- 所有権
- 構造および階数
- 木造 地上2階建
- 小学校区
- 久枝 (1042m)
- 中学校区
- 北 (1042m)
- 私道負担
- 地目
- 宅地
- 現況
- 居住中
- 引渡時期
- 相談
- 駐車場
- 有
- 上水道
- 下水道
- ガス
- 都市計画
- 市街化区域
- 用途地域
- 1種低層
- 設備・条件
- プロパンガス,電気,上水道,浄化槽,トイレ2箇所,駐車場2台分
- 備考
- 取引態様
- 仲介
その他周辺物件
*35年ローン / 金利0.780%の場合
※審査により金利は変わる可能性があります。
詳しくは詳細ページをご覧ください。
※ローン取扱手数料は別途費用負担・団信拡大は金利上乗せがございます。

