中古一戸建て 松山市土居田町
所在地
松山市土居田町
1,880万円
34.42坪
■伊予鉄道郡中線土居田駅まで徒歩7分でアクセス良好、近隣にスーパー・ドラッグストア・コンビニあり徒歩8分圏内で生活利便性良好!
月々の
支払例
支払例
万円
年
%
円
※イオン銀行住宅ローン/借入金1,880万円、返済期間35年、金利0.780%(変動金利)の場合
※審査により金利は変わる可能性があります。
※ローン取扱手数料は別途費用負担・団信拡大は金利上乗せがございます。
物件概要
- 交通
-
伊予郡中線 バス停伊予鉄バス 土居田 まで 徒歩7分
- 接道状況
- 北側 私道4m 間口約4m
- 土地面積
- 公簿 206.34㎡ (62.41坪)
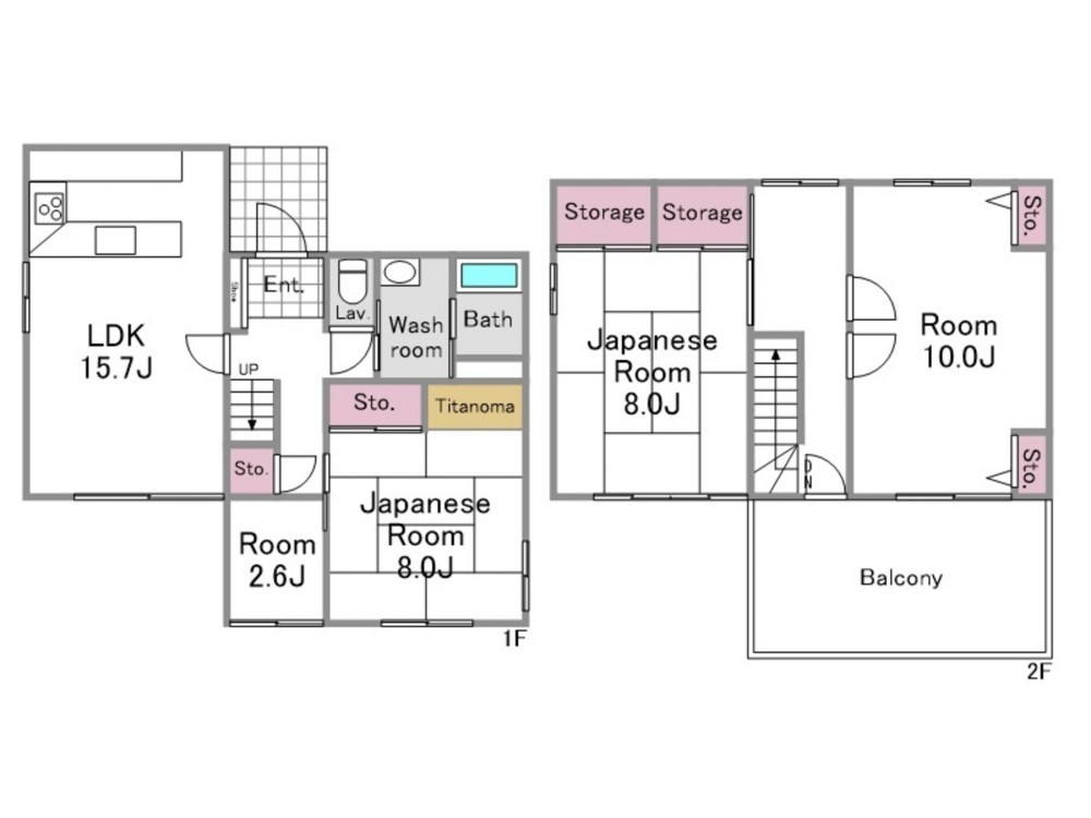
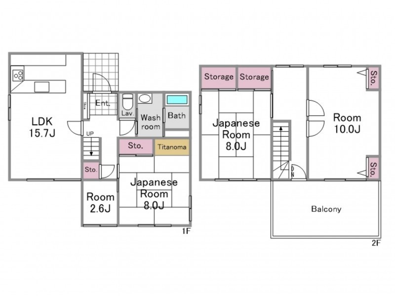
- 建物面積
- 113.80㎡ (34.42坪)
- 築年数
-
1983年
(昭和58)
5月
築42年 - 間取り
- 3SLDK
- 建ぺい率
- 60%
- 容積率
- 200%
- 土地権利
- 所有権
- 構造および階数
- 軽量鉄骨造 地上2階建
- 小学校区
- たちばな (800m)
- 中学校区
- 雄新 (1300m)
- 私道負担
- 地目
- 宅地
- 現況
- 空
- 引渡時期
- 相談
- 駐車場
- 上水道
- 下水道
- ガス
- 都市計画
- 市街化区域
- 用途地域
- 1種住居
- 設備・条件
- 備考
- 取引態様
- 仲介
その他周辺物件
*35年ローン / 金利0.780%の場合
※審査により金利は変わる可能性があります。
詳しくは詳細ページをご覧ください。
※ローン取扱手数料は別途費用負担・団信拡大は金利上乗せがございます。

