中古一戸建て 松山市北斎院町
所在地
松山市北斎院町
3,380万円
33.06坪
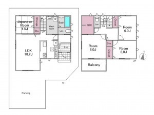
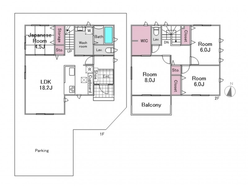
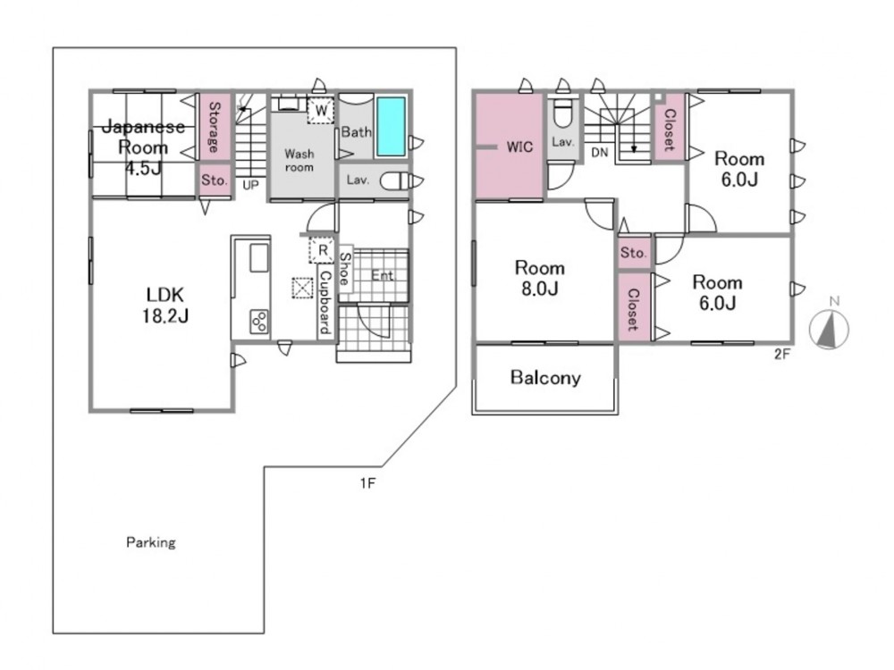
■築浅物件、2台駐車可能、ウォークインクローゼットありの4LDK、伊予鉄道バス味生まで徒歩2分でアクセス良好、味生第二小学校まで徒歩4分でお子様の通学も安心!
月々の
支払例
支払例
万円
年
%
円
※イオン銀行住宅ローン/借入金3,380万円、返済期間35年、金利0.780%(変動金利)の場合
※審査により金利は変わる可能性があります。
※ローン取扱手数料は別途費用負担・団信拡大は金利上乗せがございます。
物件概要
- 交通
-
バス停味生 まで 徒歩3分
- 接道状況
- 南側
- 土地面積
- 公簿 134.35㎡ (40.64坪)
- 建物面積
- 109.30㎡ (33.06坪)
- 築年数
-
2024年
(令和6)
9月
築1年 - 間取り
- 4LDK
- 建ぺい率
- 容積率
- 土地権利
- 所有権
- 構造および階数
- 木造 地上2階建
- 小学校区
- 味生第二 (280m)
- 中学校区
- 津田 (950m)
- 私道負担
- 地目
- 宅地
- 現況
- 空
- 引渡時期
- 即時
- 駐車場
- 上水道
- 下水道
- ガス
- 都市計画
- 市街化区域
- 用途地域
- 1種住居
- 設備・条件
- システムキッチン,カウンターキッチン,浄水器,食器洗浄乾燥機,追焚機能,トイレ2箇所,温水洗浄便座,シャンプードレッサー,浴室乾燥機,バス1坪以上,エアコン,複層ガラス,庭,オール電化,ウォークインクローゼット,駐車場2台分,ディンプルキー,火災警報器等設置済
- 備考
- 取引態様
- 仲介
その他周辺物件
*35年ローン / 金利0.780%の場合
※審査により金利は変わる可能性があります。
詳しくは詳細ページをご覧ください。
※ローン取扱手数料は別途費用負担・団信拡大は金利上乗せがございます。

