中古一戸建て 松山市市坪南3丁目
所在地
松山市市坪南3丁目
2,550万円
37.80坪
■JR予讃線市坪駅まで徒歩7分でアクセス良好、約10坪以上の庭付き物件、近隣にスーパー・ドラッグストア・コンビニあり利便性良好!
月々の
支払例
支払例
万円
年
%
円
※SBI新生銀行/借入金2,550万円、返済期間35年、金利0.600%(変動金利)の場合
※審査により金利は変わる可能性があります。
※ローン取扱手数料は別途費用負担・団信拡大は金利上乗せがございます。
物件概要
- 交通
-
予讃線 まで 徒歩7分
- 接道状況
-
東側 公道4m 間口約14.7m
西側 公道4m 間口約12.6m - 土地面積
- 公簿 218.40㎡ (66.06坪)
- 建物面積
- 124.98㎡ (37.80坪)
- 築年数
-
1992年
(平成4)
7月
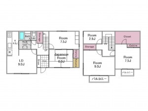
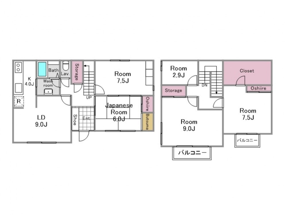
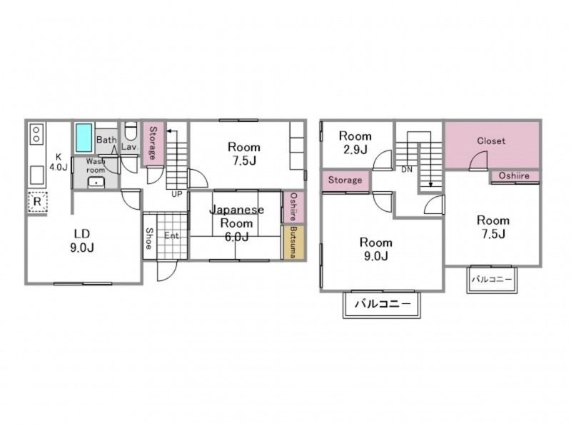
築33年 - 間取り
- 5LDK
- 建ぺい率
- 60%
- 容積率
- 200%
- 土地権利
- 所有権
- 構造および階数
- 軽量鉄骨造 地上2階建
- 小学校区
- 椿 (190m)
- 中学校区
- 椿 (1200m)
- 私道負担
- 無
- 地目
- 宅地
- 現況
- 空
- 引渡時期
- 即時
- 駐車場
- 有
- 上水道
- 下水道
- ガス
- 都市計画
- 市街化区域
- 用途地域
- 2種中高
- 設備・条件
- 備考
- 取引態様
- 仲介
その他周辺物件
*35年ローン / 金利0.600%の場合
※審査により金利は変わる可能性があります。
詳しくは詳細ページをご覧ください。
※ローン取扱手数料は別途費用負担・団信拡大は金利上乗せがございます。

