中古一戸建て 松山市上市1丁目
所在地
松山市上市1丁目
6,480万円
47.46坪
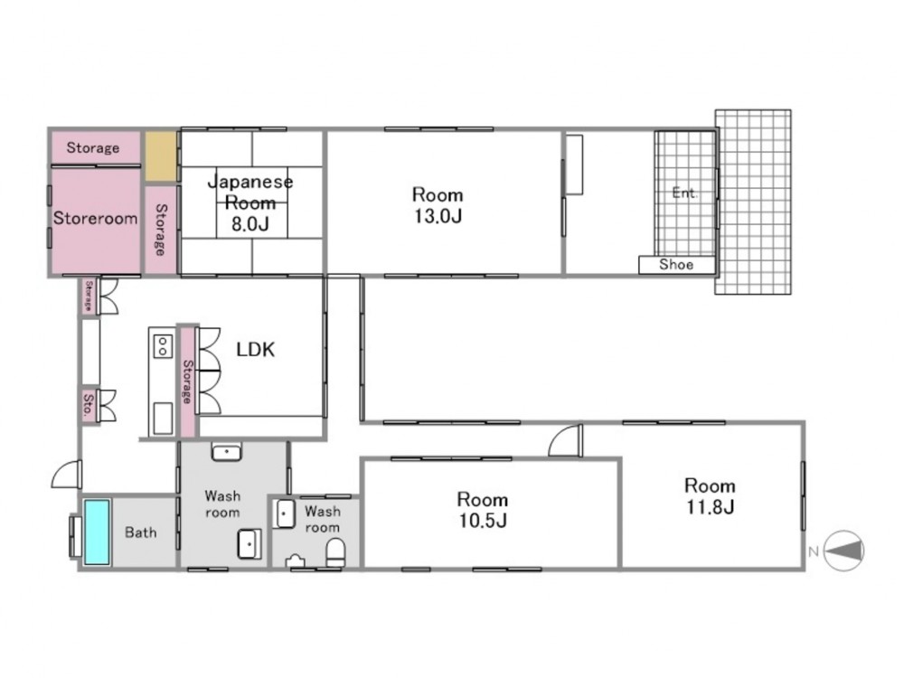
■住友林業のお家、和室以外の廊下を含む床に床暖房完備、駐車場2台可能、陽当たり良好、99坪の広い敷地!
月々の
支払例
支払例
万円
年
%
円
※SBI新生銀行/借入金6,480万円、返済期間35年、金利0.600%(変動金利)の場合
※審査により金利は変わる可能性があります。
※ローン取扱手数料は別途費用負担・団信拡大は金利上乗せがございます。
物件概要
- 交通
-
伊予城南線 まで 徒歩7分
- 接道状況
- 南側 私道4m 間口約13.7m
- 土地面積
- 公簿 327.42㎡ (99.04坪)
- 建物面積
- 156.92㎡ (47.46坪)
- 築年数
-
2002年
(平成14)
3月
築23年 - 間取り
- 4DK
- 建ぺい率
- 60%
- 容積率
- 160%
- 土地権利
- 所有権
- 構造および階数
- 木造 地上1階建
- 小学校区
- 道後 (500m)
- 中学校区
- 道後 (240m)
- 私道負担
- 無
- 地目
- 宅地
- 現況
- 居住中
- 引渡時期
- 予定
- 駐車場
- 有
- 上水道
- 下水道
- ガス
- 都市計画
- 市街化区域
- 用途地域
- 1種中高
- 設備・条件
- 都市ガス,電気,上水道,下水道,床暖房,駐車場2台分
- 備考
- 取引態様
- 仲介
その他周辺物件
*35年ローン / 金利0.600%の場合
※審査により金利は変わる可能性があります。
詳しくは詳細ページをご覧ください。
※ローン取扱手数料は別途費用負担・団信拡大は金利上乗せがございます。

